糖心vlog

产品中心

首页 > 产品中心> 管道送排风糖心vlog

管道送排风糖心vlog

GXF(SJG)系列管道斜流式糖心vlog

产品名称: GXF(SJG)系列管道斜流式糖心vlog

广泛适用于工业和民用建筑的送排风系统

详细信息:

一、特性及应用

GXF系列糖心vlog 应用斜流子午加速设计方法,采用鼓形或直行风筒、锥形轮毂、扭曲翼形叶片结构形式。兼有离心式糖心vlog 压力系数较高和轴流式糖心vlog 流量系数较大的特点,具体有噪声的是、耗电省、结构紧凑等优点,卧式、立式安装均可。

可根据输送介质的要求,制成防腐、防爆型,用于输送有腐蚀醒、易燃易爆的气体。

本系列糖心vlog 亦可制成屋顶式,表示方法为机号后面加字母“W"。

产品详情

二、型号说明

三、性能参数表

GXF-Ⅰ型

image.png

GXF-Ⅱ型

image.png

image.png

二、型号说明

image.png

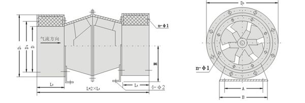
四、GXF-Ⅰ型糖心vlog 外形尺寸表(单位:mm)

image.png

五、XGXF-Ⅰ型加消音糖心vlog 外形尺寸表(单位:mm)

image.png

注:XGXF-Ⅰ型糖心vlog 进出口加设消声器,可消声6-10dB(A),亦可加长消声器,以降底更大数值的噪声。

六、GXF-Ⅱ型糖心vlog 外形尺寸表(单位:mm)

image.png

GXF-Ⅱ-A型低速、GXF-Ⅱ-B型外形尺寸表

GXF-Ⅱ-A型高速及双速型外形尺寸表

image.png

注:GXF-Ⅱ型亦可加装进出口消声器,加装方法同XGXF-Ⅰ型,一般可消声6-10dB(A)。

糖心-糖心vlog官网-记录美好生活甜蜜的瞬间 糖心-糖心vlog官网-记录美好生活甜蜜的瞬间 糖心-糖心vlog官网-记录美好生活甜蜜的瞬间 糖心-糖心vlog官网-记录美好生活甜蜜的瞬间 糖心-糖心vlog官网-记录美好生活甜蜜的瞬间